Tome II « La lecture de plans » (TÉLÉCHARGEMENT)
Le guide « La lecture de plans » est le tome II du pack « Expert ».
L’auteur a conçu ce guide pour :
- les personnes désirant s’initier aux dessins techniques et entamer des projets de constructions et/ou du moins en suivre sa réalisation ;
- les apprentis et les étudiants dans le domaine de la construction et de l’architecture ;
- les professionnels désirant de gravir des échelons.
Après avoir lu ce guide, vous serez capable :
- de déchiffrer et d’établir tous types de plans ;
- de demander l’autorisation administrative de votre construction.
Cet ouvrage vous sera utile tout au long de vos projets de constructions, de la conception jusqu’à sa réalisation ou la remise de clefs par votre constructeur.
- MarqueEditions BILP
- ISBN978-2-919766-36-9
- ContenuGuide
- SupportTÉLÉCHARGEMENT
Tome 2 : La lecture de plans
- Toutes personnes souhaitant se former au métier de maçon, coffreur …
- Auto constructeur souhaitant réaliser eux-mêmes leurs plans afin de demander l’autorisation de réalisation de travaux ou tout du moins comprendre et savoir lire parfaitement les plans techniques.
- Professionnel désirant gravir des échelons.
Avec ce guide vous serrez capable
- de lire tous les types de plans,
- de déchiffrer et de suivre le cours de vos travaux,
- d’établir un plan dans les règle de l’art.
Le contenu du guide
Sommaire de la rubrique « Les généralités »
- Les listes des abréviations et les définitions
- Le déroulement de l’opération de construction
- Les différents intervenants
- Les types de marchés
- Les bases du dessin technique
Quelques extraits :
Sommaire de la rubrique « Les différents plans »
- Les pièces constitutives d’un dossier de construction
- Les plans de façades
- Les plans de masse
- Les plans de niveaux
- Les coupes
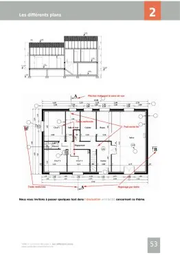
Quelques extraits :
Sommaire de la rubrique « Les plans d’exécution »
- Les généralités
- Les plans de coffrage
- Les plans de fondation
- Les plans de planchers
- Poteaux-Poutres
Quelques extraits :
Sommaire de la rubrique « Les plans de ferraillage »
- Les généralités
- Les armatures de fondation
- Les armatures d’élévation
- Les armatures de plancher
Quelques extraits :
Sommaire de la rubrique « Les évaluations » (disponibles en ligne)
- Les principes de bases (en ligne)
- Les différents plans (en ligne)
- Les plans d’exécution (en ligne)
- Les ferraillage (en ligne)
- Les évaluations finales (en ligne)
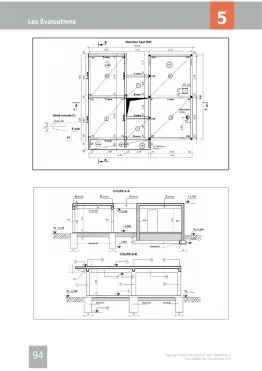
Quelques extraits :
Le mot de l’auteur
« Aujourd’hui, de plus en plus de personnes se lancent dans la construction de leur habitation ou dans des travaux de rénovation ou s’intéressent de près ou de loin à la maçonnerie.
Grâce au "WEB", cet outil magique, vous pensez trouver des solutions à vos problèmes.
Ce n’est pas toujours le cas quand il s’agit d’informations spécifiques.
Chaque propriétaire ou en devenir, chaque élève ou professeur de centre de formation, Chaque artisan, architecte ou coordinateur, Chaque bricoleur ou novice en la matière etc... sont concernés par cette discipline qui "la maçonnerie", Pour son travail, par nécessité, par économie mais aussi par goût et satisfaction personnelle.
Vous faîtes, peut être parti d’une de ces catégories. Ces ouvrages vous correspondent, ils vont vous faire comprendre : le suivi des travaux, de l’implantation aux arases en passant par les fondations, l’élévation des murs, les planchers, les finitions, escaliers, ouvertures, appuis de fenêtre etc...mais aussi de la rénovation, apprendre les termes du bâtiment, ou même faire ses aménagements intérieurs et extérieurs, faire son mur de clôture, une terrasse, une entrée de garage, un abri de jardin etc..."
Bon apprentissage »
Avec cet ouvrage, vous réaliserez un mur de clôture et ses piliers, des allées avec palier et quelques marches, la réfection d’un dallage d’un appentis, une terrasse, des enduits, des chapes et enfin tous les travaux d’extension et de rénovation et toutes les diverses finitions.
Votre TÉLÉCHARGEMENT
Je paye en ligne de façon sécurisée : CB, virement ou chèque
Je télécharge dans la minute qui suit, au format PDF
Je lit le document sur mon ordi, ma tablette ou mon smartphone
J’imprime le document si je veux
Ouvrages uniques en France (Les guides de référence)
Rien à voir avec les ouvrages que l’on trouve dans le commerce (magasin de bricolage, ou livres et petits guides sur la construction).
L’expérience de 40 années de travail dans le bâtiment et dans la formation, a permis à l’auteur de construire des ouvrages et des documents uniques en France. Ceux-ci décrivent parfaitement tout le savoir faire, les astuces, les erreurs à ne pas commettre, les gestes, les outils à utiliser et la mise en œuvre pour la construction de votre maison. Que ce soit la construction principale, les annexes, les extensions, la rénovation ou les simples travaux d’extérieur. Le tout pédagogiquement afin que chacun d’entre nous puisse comprendre et mettre en pratique les conseils fournis.





















